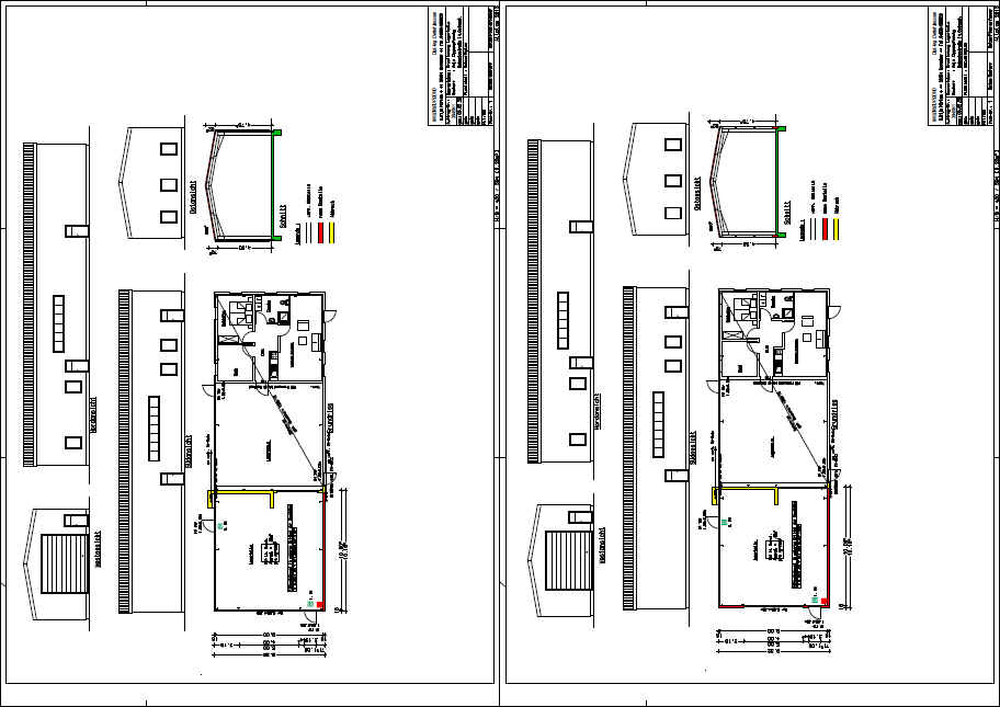
Altbau Haus vorne (Abrissobjekt)
Halle Neubau hinten Gewerbe / oder Wohnen
beide Nutzungen möglich.
Doppelgarage hinten.
Baugenehmigung Neubau vorne genehmigt,
Wohnen, oder Gewerbe je nach Bedarf.
Alles möglich außer produzierenden
Gewerbe, Lärm, Abgase.
Garage Isowand 80 mm. Elektrisches
Rolltor. Dach 125 mm. Isodach.
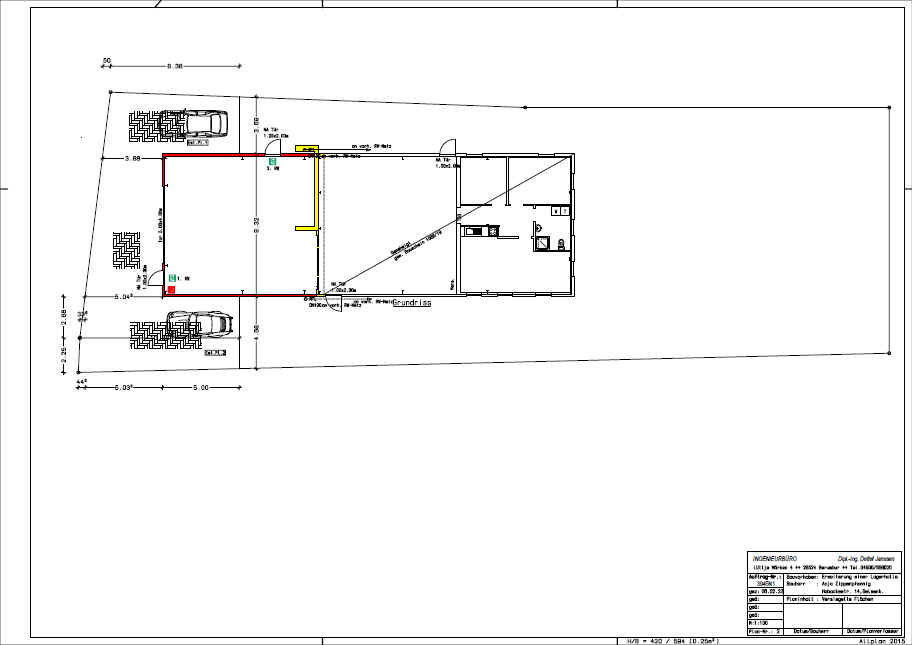
Grundstück 820 m2. neu Entwässert
& gepflastert.
Ringsum Eingezäunt.
Halle 80 mm. Styrodur unter
Bodenplatte. Wände 17,5 Ytong, 10 cm. Styropor, Luftschicht &
Klinker. Dach 125 mm. Isodach. Holz Zwischendecke, so das oben noch
Wohnraum ausgebaut werden könnte. Fenster 3 fach mit Elektrischen
Rollos.
Altbau Haus vorne 80% neue 3 fach
Fenster. Dachbalken noch OK. müsste nur neu eingedeckt werden. Oder
Abreißen & vorne genehmigten Neubau gleiche Breite & Höhe
wie hinteren Bau bis zur
Straße verlängern = genehmigt. Wohnen, Gewerbe, alles erlaubt, außer
produzierendes Gewerbe.
Neue Gasttherme vorne im Altbau, in Garage
hinten neuer
Strom & Wasseranschluss.
Neubau hinten noch nicht ganz fertig,
kann noch nach eigenen Bedürfnissen ausgebaut / umgebaut werden.
298 000,- €.
Wir bräuchten aber 3 Monate um
leerzuräumen.
Bei Fragen: grafgriffe@web.de
Keine Hausbesichtigungen innen möglich !


Hof komplett Entwässert & neu
gepflastert.


Neubau hinten von Außen fertig,
Foto dient nur zur Ansicht des Aufbaues.

Rot ist vorne genehmigter
zusätzlicher Neubau. Schwarz ist bestehender hinterer Neubau.
Auf Wunsch per Email größere
Pläne. grafgriffe@web.de

